top of page

Create Your First Project
Start adding your projects to your portfolio. Click on "Manage Projects" to get started
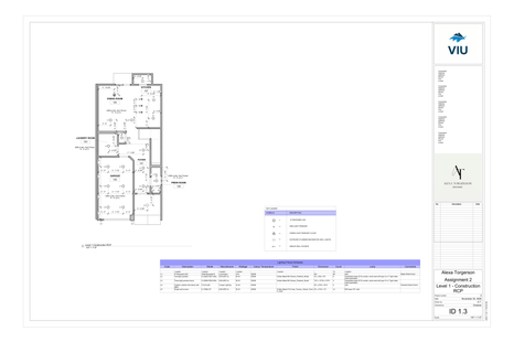
Johnson Residence
Project type
Construction Drawings
Date
November 2025
The Johnson Residence construction drawings include a partition plan, construction elevations, reflected ceiling plan, finishes plan, and furniture plan. The project is a duplex; these drawings represent one unit and are intended to be mirrored for the second.
Program used: Revit










bottom of page

